-
-
-
Tổng tiền thanh toán:
-
Biến Tần Máy Nén Khí: Cấu Tạo, Nguyên Lý Hoạt Động Và Cách Lựa Chọn Chuẩn
Ngày 19/03/2026
Bình luận (0)
Biến Tần Máy Nén Khí: Cấu Tạo, Nguyên Lý Hoạt Động Và Hướng Dẫn Lựa Chọn Chi Tiết Nhất
Trong các hệ thống sản xuất công nghiệp, máy nén khí đóng vai trò cung cấp năng lượng cho hàng loạt thiết bị. Tuy nhiên, chi phí vận hành hệ thống khí nén luôn ở mức rất cao, chủ yếu đến từ điện năng tiêu thụ. Việc ứng dụng biến tần (VFD) cho máy nén khí được xem là giải pháp tối ưu giúp tiết kiệm điện, ổn định áp suất và nâng cao hiệu suất tổng thể. Bài viết dưới đây sẽ phân tích chuyên sâu về cấu tạo, nguyên lý hoạt động và cách lựa chọn biến tần phù hợp.
Tổng quan về biến tần máy nén khí trong công nghiệp hiện đại
Trong nhiều nhà máy sản xuất, hệ thống khí nén thường chiếm từ 60–75% tổng chi phí điện năng. Tuy nhiên, phần lớn các hệ thống cũ vẫn vận hành theo cơ chế đóng/ngắt hoặc chạy không tải khi nhu cầu giảm, dẫn đến việc tiêu hao điện năng một cách lãng phí.
Ở chế độ vận hành truyền thống, khi áp suất đạt ngưỡng, máy nén sẽ chuyển sang trạng thái không tải (unload) nhưng vẫn tiêu thụ tới 20–40% điện năng. Khi áp suất giảm, máy lại chuyển sang trạng thái có tải (load), tạo ra chu kỳ đóng/ngắt liên tục. Điều này không chỉ gây lãng phí điện mà còn làm giảm tuổi thọ của thiết bị.
Sự xuất hiện của biến tần đã thay đổi hoàn toàn cách vận hành hệ thống khí nén. Thay vì chạy cố định, máy nén có thể điều chỉnh tốc độ theo nhu cầu thực tế, từ đó tối ưu hóa hiệu suất và giảm đáng kể chi phí vận hành.
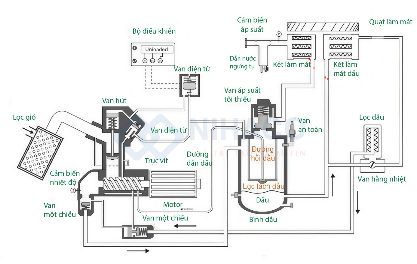
Cấu tạo chi tiết của hệ thống biến tần máy nén khí
Để hiểu rõ cách hoạt động, cần phân tích từng thành phần cấu thành hệ thống.
Biến tần (VFD – Variable Frequency Drive)
Biến tần là trung tâm điều khiển của hệ thống, có nhiệm vụ thay đổi tần số và điện áp cung cấp cho động cơ. Một biến tần tiêu chuẩn bao gồm ba phần chính:
-
Bộ chỉnh lưu (Rectifier): chuyển đổi nguồn điện xoay chiều (AC) thành điện một chiều (DC).
-
Mạch DC Link: lưu trữ và ổn định năng lượng trước khi cấp cho inverter.
-
Bộ nghịch lưu (Inverter): chuyển đổi điện DC thành AC với tần số thay đổi, từ đó điều chỉnh tốc độ động cơ.
Chính bộ nghịch lưu là thành phần quyết định khả năng điều khiển tốc độ và hiệu suất của hệ thống.
Động cơ máy nén khí
Động cơ thường là loại không đồng bộ 3 pha, được thiết kế để hoạt động liên tục trong môi trường công nghiệp. Khi kết hợp với biến tần, động cơ có thể hoạt động linh hoạt ở nhiều mức tốc độ khác nhau thay vì chỉ chạy cố định như trước đây.
Cảm biến áp suất
Cảm biến áp suất đóng vai trò cực kỳ quan trọng trong hệ thống điều khiển vòng kín. Thiết bị này liên tục đo áp suất thực tế trong đường ống hoặc bình tích khí và gửi tín hiệu về biến tần dưới dạng analog (thường là 4–20mA).
Độ chính xác của cảm biến ảnh hưởng trực tiếp đến độ ổn định của toàn bộ hệ thống.
Bộ điều khiển trung tâm (PLC hoặc Sequencer)
Trong các hệ thống có nhiều máy nén khí, PLC hoặc bộ điều khiển trung tâm sẽ:
-
Điều phối hoạt động giữa các máy
-
Quyết định khi nào cần khởi động hoặc dừng máy
-
Giao tiếp với biến tần để tối ưu vận hành
Đây là thành phần không thể thiếu trong các hệ thống lớn.
Cụm máy nén khí
Bao gồm:
-
Đầu nén (có thể là loại 1 cấp hoặc 2 cấp)
-
Bộ tách dầu/khí hoặc nước/khí
-
Két làm mát
-
Van xả tải
Tất cả các thành phần này phối hợp với nhau để đảm bảo quá trình nén khí diễn ra ổn định và hiệu quả.


Nguyên lý hoạt động của biến tần máy nén khí
Điều khiển vòng kín – nền tảng của hệ thống
Nguyên lý hoạt động của hệ thống dựa trên cơ chế phản hồi liên tục. Cảm biến áp suất đo giá trị thực tế và gửi về biến tần. Biến tần sẽ so sánh giá trị này với áp suất cài đặt (setpoint) để điều chỉnh tốc độ động cơ.
Quá trình này diễn ra liên tục theo thời gian thực, giúp hệ thống luôn duy trì áp suất ổn định.
Khi nhu cầu sử dụng khí tăng, áp suất giảm, biến tần sẽ tăng tốc động cơ để bù lại lượng khí thiếu hụt. Ngược lại, khi nhu cầu giảm, biến tần sẽ giảm tốc độ để tránh lãng phí năng lượng.
Thuật toán PID trong điều khiển biến tần
Để đảm bảo hệ thống hoạt động mượt và chính xác, biến tần sử dụng thuật toán PID.
-
Thành phần P (Proportional) giúp hệ thống phản ứng nhanh với sai lệch tức thời.
-
Thành phần I (Integral) giúp loại bỏ sai lệch tích lũy theo thời gian.
-
Thành phần D (Derivative) giúp dự đoán xu hướng thay đổi và giảm dao động.
Khi được cài đặt đúng, PID giúp hệ thống duy trì áp suất ổn định với sai số rất nhỏ, đồng thời tránh hiện tượng tăng giảm đột ngột.
So sánh với phương pháp điều khiển truyền thống
So với hệ thống truyền thống, biến tần mang lại nhiều ưu điểm vượt trội. Thay vì liên tục đóng/ngắt, hệ thống sử dụng biến tần vận hành liên tục nhưng linh hoạt, giúp giảm hao mòn và tiết kiệm điện năng đáng kể.

Hướng dẫn cách chọn biến tần cho máy nén khí
Việc lựa chọn biến tần phù hợp là yếu tố quyết định đến hiệu quả vận hành.
Lựa chọn công suất phù hợp
Biến tần cần có công suất lớn hơn công suất động cơ từ 10–20% để đảm bảo hoạt động ổn định trong điều kiện tải nặng.
Xác định đúng loại tải
Máy nén khí thuộc nhóm tải mô-men không đổi. Do đó cần chọn biến tần loại tải nặng (Heavy Duty), có khả năng chịu quá tải cao.
Yêu cầu về điều khiển PID
Biến tần bắt buộc phải có chức năng PID tích hợp để điều khiển áp suất. Đây là yếu tố cốt lõi giúp hệ thống hoạt động ổn định.
Khả năng hoạt động ở tốc độ thấp
Trong thực tế, máy nén khí thường vận hành ở mức 30–80% tải. Do đó biến tần cần đảm bảo hoạt động ổn định ở dải tốc độ thấp mà không gây rung hoặc lỗi.
Khả năng giao tiếp và mở rộng
Đối với hệ thống lớn, biến tần cần hỗ trợ các giao thức truyền thông như Modbus hoặc Ethernet để kết nối với PLC và hệ thống giám sát.
Các tính năng bảo vệ
Biến tần cần có đầy đủ các chức năng bảo vệ như quá dòng, quá áp, quá nhiệt và mất pha để đảm bảo an toàn vận hành.
Lợi ích khi sử dụng biến tần cho máy nén khí
Việc ứng dụng biến tần mang lại nhiều lợi ích rõ rệt:
-
Tiết kiệm từ 20–40% điện năng
-
Duy trì áp suất ổn định
-
Giảm hao mòn thiết bị
-
Tăng tuổi thọ hệ thống
-
Giảm chi phí bảo trì
Những sai lầm thường gặp khi dùng biến tần cho máy nén khí
Trong thực tế, nhiều hệ thống không đạt hiệu quả do:
-
Lựa chọn sai công suất biến tần
-
Không sử dụng cảm biến áp suất
-
Cài đặt PID không đúng
-
Lắp đặt nhiều biến tần điều khiển cùng lúc
Những sai lầm này có thể khiến hệ thống hoạt động không ổn định và không tiết kiệm điện như kỳ vọng.
Kinh nghiệm triển khai thực tế với biến tần máy nén khí
Để đạt hiệu quả tối ưu, nên:
-
Sử dụng một biến tần làm máy điều chỉnh chính
-
Kết hợp với các máy chạy tải cố định
-
Trang bị bình tích khí phù hợp
-
Thực hiện đo tải trước khi thiết kế
Lắp đặt biến tần máy nén khí thực tế tại Hải Phòng
Ứng dụng biến tần máy nén khí tại Hà Nội
Lắp đặt biến tần Delixi cho máy nén khí tại Hải dương
Hình ảnh thực tế từ các dự án với biến tần máy nén khí


Biến tần máy nén khí là giải pháp quan trọng trong việc tối ưu hóa hệ thống khí nén công nghiệp. Tuy nhiên, hiệu quả của giải pháp này phụ thuộc lớn vào việc lựa chọn thiết bị, thiết kế hệ thống và cài đặt điều khiển.
Do đó, doanh nghiệp cần có sự đầu tư bài bản và hiểu rõ nguyên lý hoạt động để khai thác tối đa lợi ích mà biến tần mang lại.
Công ty cổ phần tự động hóa Nihaco mang đến giải pháp tối ưu, kinh tế nhất cho Biến tần máy nén khí:
Biến tần Delixi chính hãng chất lượng cao phù hợp với các dòng máy nén khí trục vít, piston...
Cung cấp biến tần máy nén khí chuyên dụng
Sửa chữa bảo dưỡng biến tần máy nén khí mọi hãng
Thiết kế thi công tủ điều khiển máy nén khí tối ưu
HOTLINE: 093 888 3515